Concours d'architecture 2019

Site blueFACTORY

collaboration dreierfrenzel & mullerarchitecte

Concerto

Le projet est pensé comme un concerto dont la composition s’articule en trois mouvements très contrastés un rapide, un lent, un rapide qui partagent pourtant une atmosphère commune. Ces mouvements sont autant de gestes distincts et autonomes qui se complètent pour créer un ensemble cohérent.
Le premier mouvement, l’Allegro, est composé d’éléments préexistants, donnant une forte teneur symbolique à l’ensemble de l’œuvre en imposant une identité issue du passé industriel. C’est la Cheminée, la Fabrique, le Silo, les derniers témoins d’un contexte industriel réhabilité.
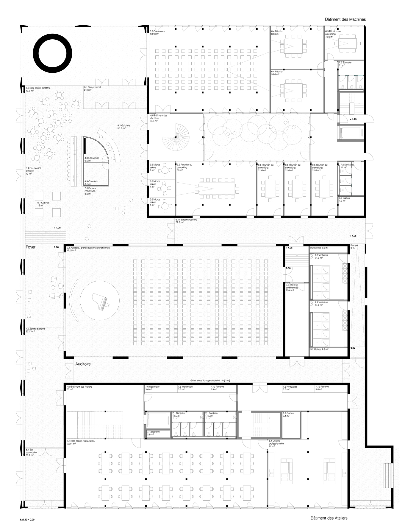
Le deuxième mouvement, le Largo (selon sa vitesse aussi nommé Adagio ou Andante), assure la cohérence évidente de l’ensemble par son ampleur, sa modénature ses structurante et ses répétitions successives. Par sa position au milieu du concerto, il s’adapte subtilement à son contexte celui qui le précède, celui qui le suit en modulant les tonalités et en assurant continuité et transition. C’est le Foyer qui constitue, avec l’Auditoire et les deux Cours, le socle des activités publiques du nouvel ensemble.
Le troisième mouvement, le Presto, a valeur de conclusion, de point d’orgue. Il est fait de fulgurances qui témoignent du nouvel idéal de la composition et affirme son identité. Les solistes dévoilent leurs attraits de manière conquérante et ponctue l’ensemble dans une tonalité assumée. Ainsi les deux nouveaux Bâtiments des Machines et des Ateliers avec leur bureaux, laboratoires et salles de conférence, puis plus tard le Bâtiment des Arts et le Smart Living Lab, sont autant de volumes reconnaissables qui portent la nouvelle identité de blueFACTORY.


blueFACTORYb